360 degree view

Virtual Tour

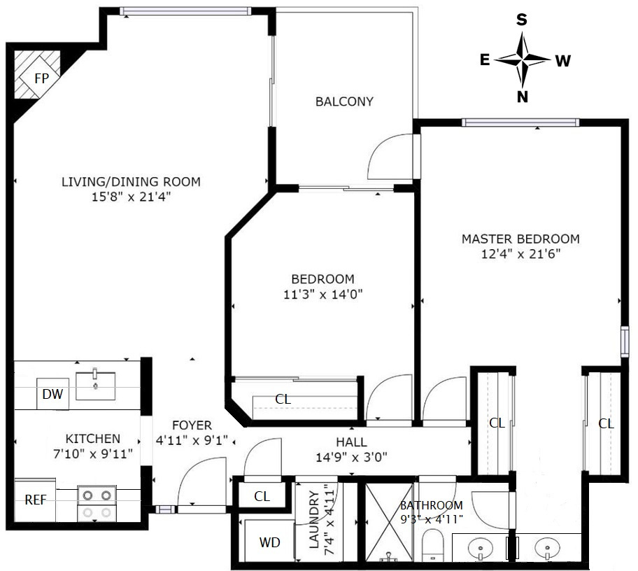
floorplan living room balcony kitchen master bathroom guest bedroom

Floorplan

Entrance

Hallway

Clubhouse

Classic View

Additional Photos